W dzisiejszych czasach, kiedy rynek motoryzacyjny dynamicznie się zmienia, a klienci stają się coraz bardziej wymagający, prowadzenie nowoczesnego warsztatu samochodowego to prawdziwe wyzwanie. Jako Ryszard Kowalczyk, z wieloletnim doświadczeniem w branży, wiem, że sukces nie opiera się wyłącznie na umiejętnościach mechanicznych, ale także na spełnieniu szeregu standardów prawnych, technicznych i obsługowych. Ten przewodnik ma na celu przedstawienie kompleksowego obrazu tego, co definiuje profesjonalny warsztat w Polsce, pomagając zarówno przyszłym przedsiębiorcom, jak i klientom w ocenie jakości oferowanych usług.
Nowoczesny warsztat samochodowy kompleksowy przewodnik po kluczowych standardach i wymaganiach w Polsce
- Rejestracja działalności, aktualizacja kodów PKD oraz obowiązek Krajowego Systemu e-Faktur (KSeF) to podstawowe formalności prawne.
- Lokalizacja i budynek muszą spełniać wymogi prawa budowlanego, w tym dotyczące wentylacji, kanalizacji i odpowiedniego oświetlenia.
- Kluczowa jest efektywna organizacja przestrzeni warsztatu, z wyraźnym podziałem na strefy funkcjonalne, takie jak Biuro Obsługi Klienta, hala napraw i magazyn.
- Niezbędne wyposażenie to podnośnik, kompresor, kompleksowe narzędzia ręczne i pneumatyczne, a także nowoczesny sprzęt diagnostyczny.
- Profesjonalna obsługa klienta opiera się na transparentności kosztorysów, regularnej komunikacji i skutecznym zarządzaniu reklamacjami.
- Cyfryzacja, obsługa pojazdów elektrycznych/hybrydowych oraz rozwiązania prośrodowiskowe to kluczowe trendy kształtujące przyszłość branży.

Fundamenty profesjonalnego warsztatu: Wymogi prawne i budowlane
Zanim w ogóle pomyślimy o pierwszym kliencie, musimy upewnić się, że nasz warsztat stoi na solidnych podstawach prawnych i budowlanych. To absolutna podstawa, bez której nie ma mowy o legalnym i bezpiecznym prowadzeniu działalności.
Działalność gospodarcza od A do Z: Rejestracja, kody PKD i obowiązek KSeF
Założenie warsztatu samochodowego w Polsce, wbrew pozorom, nie wymaga specjalnych licencji czy zezwoleń branżowych. Kluczowe jest jednak prawidłowe zarejestrowanie działalności gospodarczej. Co ważne, warto zwrócić uwagę na zmieniające się przepisy dotyczące kodów PKD. Do końca 2026 roku obowiązuje okres przejściowy, w którym działalność warsztatowa zostanie przeniesiona z działu 45. do działu 95. Warto to mieć na uwadze i odpowiednio zaktualizować swoje wpisy. Kolejną istotną zmianą, która dotknie wszystkich przedsiębiorców, w tym warsztaty, jest obowiązek wystawiania faktur przez Krajowy System e-Faktur (KSeF). Od 1 kwietnia 2026 roku stanie się to standardem, niezależnie od wielkości firmy. Warto już teraz zapoznać się z tym systemem i przygotować na nadchodzące zmiany.
Lokalizacja i budynek: Jakie warunki techniczne narzuca prawo budowlane?
Wybór lokalizacji i samego budynku to decyzje o strategicznym znaczeniu. Obiekt, w którym ma funkcjonować warsztat, musi być zgodny z Miejscowym Planem Zagospodarowania Przestrzennego lub, w przypadku jego braku, uzyskać decyzję o warunkach zabudowy. Prawo budowlane narzuca szereg warunków technicznych, które należy spełnić. Przykładowo, istnieją określone minimalne odległości od granicy działki, które trzeba zachować:
- 3 metry dla ściany bez okien i drzwi,
- 4 metry dla ściany z oknami lub drzwiami.
Niezastosowanie się do tych wymogów może skutkować poważnymi problemami prawnymi i koniecznością kosztownych przeróbek.
Niezbędna infrastruktura: Wentylacja, kanalizacja i oświetlenie bez tajemnic
Odpowiednia infrastruktura to podstawa bezpiecznej i efektywnej pracy. W warsztacie samochodowym kluczowa jest przede wszystkim skuteczna wentylacja zarówno ogólna, zapewniająca wymianę powietrza w całej hali, jak i stanowiskowa, służąca do odprowadzania spalin bezpośrednio z układów wydechowych pojazdów. Niezbędna jest również sprawna instalacja wodno-kanalizacyjna, która umożliwi prawidłowe odprowadzanie ścieków i zapewni dostęp do wody. Nie można zapominać o odpowiednim oświetleniu, które ma bezpośredni wpływ na komfort i precyzję pracy, a także bezpieczeństwo. Normy określają minimalne poziomy natężenia światła dla poszczególnych rodzajów prac:
- Prace blacharskie: 300 lx,
- Prace przy nadwoziu: 500 lx,
- Prace lakiernicze: 750 lx.
Dobre oświetlenie to inwestycja, która zwraca się w jakości wykonanych usług i zadowoleniu pracowników.

Przestrzeń, która pracuje dla Ciebie: Perfekcyjna organizacja warsztatu
Gdy fundamenty prawne i budowlane są już za nami, czas zająć się sercem warsztatu jego przestrzenią. Wierzę, że dobrze zorganizowana przestrzeń to nie tylko estetyka, ale przede wszystkim klucz do efektywności, bezpieczeństwa i zadowolenia zarówno pracowników, jak i klientów.
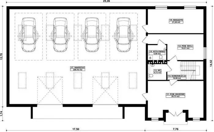
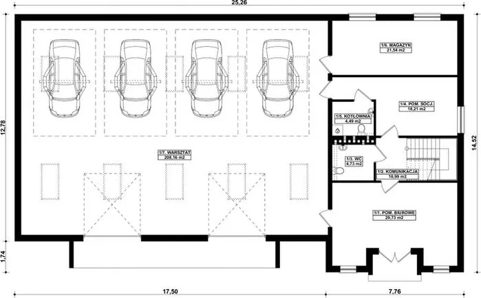
Klucz do efektywności: Podział na strefy funkcjonalne (BOK, hala, magazyn)
Logiczny podział warsztatu na wyraźne strefy funkcjonalne to absolutna podstawa. Pozwala to na płynny przepływ pracy, minimalizuje chaos i zwiększa bezpieczeństwo. Oto kluczowe strefy, które moim zdaniem powinny znaleźć się w każdym nowoczesnym warsztacie:
- Biuro Obsługi Klienta (BOK) z poczekalnią: To wizytówka firmy i pierwsze miejsce kontaktu klienta z warsztatem. Powinno być komfortowe i profesjonalne.
- Hala napraw: Główna przestrzeń robocza, podzielona na stanowiska, gdzie odbywają się właściwe prace serwisowe.
- Magazyn części i narzędzi: Miejsce do przechowywania części zamiennych, materiałów eksploatacyjnych i narzędzi, zapewniające szybki dostęp i porządek.
- Strefa socjalna dla pracowników: Szatnia, jadalnia, toalety miejsca, gdzie pracownicy mogą odpocząć i przygotować się do pracy.
- Miejsce na składowanie odpadów: Odpowiednio wydzielona i zabezpieczona przestrzeń do segregacji i przechowywania zużytych olejów, opon, akumulatorów i innych odpadów.
Biuro Obsługi Klienta i poczekalnia, czyli wizytówka Twojej firmy
Nie mogę wystarczająco podkreślić, jak ważną rolę odgrywa Biuro Obsługi Klienta i przylegająca do niego poczekalnia. To tutaj klient wyrabia sobie pierwsze wrażenie o naszym warsztacie. Nowoczesny standard poczekalni to nie tylko wygodne siedzenia, ale także udogodnienia takie jak dostęp do Wi-Fi, telewizor, a nawet drobne napoje (kawa, woda). Troska o komfort klienta w tym miejscu świadczy o profesjonalizmie i dbałości o detale, co przekłada się na budowanie zaufania i lojalności.
Ergonomia stanowiska naprawczego: Jak uniknąć chaosu i straty czasu?
Każde stanowisko pracy w hali napraw powinno być zaprojektowane z myślą o ergonomii. Oznacza to, że mechanik powinien mieć wszystko pod ręką, a ruchy wykonywane w trakcie pracy powinny być minimalne i efektywne. Dobre oświetlenie stanowiska to podstawa, ale równie ważna jest jego organizacja. Wiele warsztatów, w tym i ja, docenia popularność mobilnych wózków narzędziowych. Pozwalają one na przypisanie konkretnego zestawu narzędzi do danego stanowiska lub nawet do konkretnego mechanika, co znacząco redukuje czas poświęcony na szukanie potrzebnych kluczy czy śrubokrętów.
Magazyn części i narzędzi: Porządek, który przekłada się na zysk
Magazyn to często niedoceniana część warsztatu, a to właśnie tam tkwi potencjał do optymalizacji kosztów i czasu. Porządek w magazynie części i narzędzi to nie tylko kwestia estetyki, ale przede wszystkim efektywności. Nikt nie lubi tracić czasu na szukanie potrzebnej śruby czy filtra. Warto zainwestować w solidne meble warsztatowe i regały o odpowiedniej nośności półki powinny wytrzymywać obciążenie minimum 300-400 kg. Dobrze zorganizowany magazyn z wyraźnym systemem etykietowania i inwentaryzacji to oszczędność czasu i pieniędzy.

Serce warsztatu: Niezbędne wyposażenie dla skutecznej pracy
Nawet najlepiej zorganizowana przestrzeń nie zda się na nic bez odpowiedniego wyposażenia. To właśnie narzędzia i maszyny stanowią o sile i możliwościach każdego warsztatu. Jako Ryszard Kowalczyk zawsze powtarzam, że inwestycja w dobry sprzęt to inwestycja w przyszłość i reputację firmy.
Absolutna podstawa: Jaki podnośnik i kompresor wybrać na start?
Jeśli miałbym wskazać dwa elementy wyposażenia, bez których nowoczesny warsztat nie może funkcjonować, byłyby to podnośnik i kompresor. Podnośnik dwukolumnowy o udźwigu minimum 2,5 tony to standard, który pozwoli na obsługę większości samochodów osobowych i dostawczych. Warto rozważyć modele z większym udźwigiem, jeśli planujemy obsługę cięższych pojazdów. Drugim filarem jest kompresor. Jego wydajność powinna wynosić co najmniej 250-350 litrów na minutę, a zbiornik powietrza powinien mieć pojemność od 100 do 270 litrów. To zapewni odpowiednie zasilanie dla narzędzi pneumatycznych i innych urządzeń.
Narzędzia, które definiują mechanika: Od kluczy ręcznych po sprzęt pneumatyczny
Zestaw narzędzi to wizytówka każdego mechanika. Nie ma tu miejsca na kompromisy. Podstawą są oczywiście kompleksowe zestawy kluczy:
- nasadowe,
- płasko-oczkowe,
- imbusowe,
- dynamometryczne (niezbędne do precyzyjnego dokręcania),
- różnorodne śrubokręty.
Jednak w dzisiejszych czasach nie można poprzestać na narzędziach ręcznych. Sprzęt pneumatyczny lub akumulatorowy, taki jak klucz udarowy (o momencie obrotowym 400-1000 Nm), znacząco przyspiesza pracę i zwiększa komfort mechanika. Warto również pomyśleć o wiertarkach, szlifierkach i innych elektronarzędziach.
Mózg operacji: Dlaczego nowoczesny komputer diagnostyczny to konieczność?
Współczesne samochody to jeżdżące komputery. Bez komputera diagnostycznego (skanera OBD2) z aktualnym oprogramowaniem i dostępem do baz danych technicznych (takich jak Autodata czy HaynesPro) jesteśmy ślepi. To narzędzie pozwala na odczyt kodów błędów, monitorowanie parametrów pracy silnika i innych układów, a także na kodowanie i adaptacje podzespołów. Inwestycja w dobry sprzęt diagnostyczny i jego regularne aktualizacje to absolutna konieczność, jeśli chcemy skutecznie diagnozować i naprawiać nowoczesne pojazdy.
Wyposażenie dla specjalistów: Geometria kół, obsługa klimatyzacji i wulkanizacja
Profil warsztatu często determinuje potrzebę posiadania bardziej specjalistycznego sprzętu. Jeśli planujemy oferować kompleksowe usługi, warto rozważyć:- Urządzenia do geometrii i wyważania kół, a także montażownicę i prostowarkę do felg dla usług wulkanizacyjnych i związanych z zawieszeniem.
- Spawarkę do drobnych napraw blacharskich i konstrukcyjnych.
- Sprzęt do obsługi klimatyzacji w tym stację do napełniania i odzysku czynnika chłodniczego.
- Coraz częściej, w związku z rosnącą popularnością, narzędzia do obsługi pojazdów elektrycznych i hybrydowych izolowane narzędzia, testery wysokiego napięcia, a także odpowiednie szkolenia dla mechaników.
Tego typu inwestycje poszerzają zakres usług i budują przewagę konkurencyjną.
Solidne meble warsztatowe: Inwestycja w bezpieczeństwo i organizację
Wracając do tematu organizacji, nie mogę pominąć znaczenia solidnych mebli warsztatowych. Wytrzymałe stoły robocze, szafy narzędziowe i regały magazynowe o odpowiedniej nośności (półki min. 300-400 kg) to podstawa. Zapewniają one nie tylko porządek, ale przede wszystkim bezpieczeństwo. Meble niskiej jakości szybko się zużywają, a ich awaria może prowadzić do wypadków lub uszkodzenia cennego sprzętu. To inwestycja, która procentuje każdego dnia.
Klient w centrum uwagi: Budowanie zaufania i lojalności
Nawet najlepsze narzędzia i perfekcyjna organizacja nie wystarczą, jeśli zapomnimy o najważniejszym elemencie kliencie. W mojej opinii, profesjonalna obsługa klienta to fundament, na którym buduje się zaufanie i długoterminową lojalność. To właśnie ona wyróżnia dobry warsztat na tle konkurencji.
Pierwsze wrażenie ma znaczenie: Profesjonalny proces przyjęcia pojazdu
Każdy kontakt z klientem to szansa na zbudowanie pozytywnej relacji. Dlatego tak ważny jest profesjonalny proces obsługi, który powinien obejmować następujące etapy:
- Przyjęcie pojazdu: Uprzejme powitanie, wstępna rozmowa z klientem na temat problemu i oczekiwań.
- Stworzenie zlecenia: Dokładne spisanie danych pojazdu, zgłaszanych usterek i zakresu wstępnych prac.
- Wykonanie kosztorysu: Na podstawie wstępnej diagnozy, przygotowanie szczegółowego kosztorysu usług i części.
- Uzyskanie akceptacji klienta: Przedstawienie kosztorysu, wyjaśnienie wszelkich wątpliwości i uzyskanie zgody na rozpoczęcie naprawy.
- Realizacja naprawy: Wykonanie prac zgodnie ze zleceniem i najwyższymi standardami.
- Kontrola jakości: Sprawdzenie poprawności wykonanych prac przed wydaniem pojazdu.
- Wydanie samochodu: Uprzejme przekazanie pojazdu, omówienie wykonanych prac, wskazanie ewentualnych przyszłych zaleceń i rozliczenie.
Każdy z tych etapów powinien być traktowany z należytą starannością.
Transparentność to podstawa: Sztuka tworzenia czytelnych kosztorysów
W dzisiejszych czasach klienci cenią sobie przede wszystkim transparentność. Nikt nie lubi niespodzianek, zwłaszcza tych finansowych. Dlatego szczegółowe i czytelne kosztorysy, przedstawiane klientowi przed rozpoczęciem naprawy, są absolutnym fundamentem budowania wiarygodności. Kosztorys powinien jasno wyszczególniać zarówno ceny za usługi, jak i za poszczególne części zamienne. To pokazuje, że nie mamy nic do ukrycia i szanujemy pieniądze klienta.
Komunikacja, która buduje relacje: Jak informować klienta o postępach naprawy?
Jasna i zrozumiała komunikacja to klucz do zadowolenia klienta. Klienci chcą być na bieżąco informowani o postępach naprawy. Regularne aktualizacje czy to telefonicznie, czy poprzez SMS o statusie prac, ewentualnych opóźnieniach czy dodatkowych usterkach, które wymagają interwencji, budują poczucie, że klient jest ważny i jego samochód jest w dobrych rękach. Unikamy w ten sposób niepotrzebnego stresu i nieporozumień.
Trudne sytuacje: Jak profesjonalnie zarządzać reklamacjami i niezadowoleniem?
Nawet w najlepszym warsztacie zdarzają się trudne sytuacje i reklamacje. Kluczowe jest to, jak sobie z nimi radzimy. Profesjonalne zarządzanie reklamacjami opiera się na kilku zasadach: przede wszystkim empatyczne wysłuchanie klienta bez przerywania, pełne zrozumienie zgłaszanego problemu, a następnie szybka i skuteczna reakcja w celu jego rozwiązania. Pamiętajmy, że zadowolony klient, którego reklamacja została sprawnie obsłużona, często staje się najbardziej lojalnym ambasadorem naszego warsztatu.
Warsztat w erze cyfrowej: Technologie i trendy kształtujące branżę
Świat idzie do przodu, a wraz z nim branża motoryzacyjna. Cyfryzacja to już nie przyszłość, a teraźniejszość, która rewolucjonizuje sposób, w jaki prowadzimy warsztaty. Jako Ryszard Kowalczyk zawsze staram się być na bieżąco z nowinkami, bo wiem, że to one decydują o przewadze konkurencyjnej.
Koniec z papierem: Jak oprogramowanie do zarządzania (CRM) rewolucjonizuje pracę?
Czasy papierowych zleceń i segregatorów odchodzą w niepamięć. Nowoczesne warsztaty korzystają z oprogramowania typu CRM (Customer Relationship Management), które integruje wiele aspektów działalności. Systemy takie jak mpWarsztat, Integra Car czy Motowarsztat.pl usprawniają zarządzanie zleceniami, tworzenie i prowadzenie bazy klientów i pojazdów, harmonogramowanie pracy, zarządzanie magazynem części, a także fakturowanie. To wszystko przekłada się na oszczędność czasu, minimalizację błędów i znacznie lepszą kontrolę nad całym procesem obsługi.
Przyszłość jest dziś: Przygotowanie warsztatu na obsługę aut elektrycznych i hybrydowych
Nie da się ukryć, że przyszłość motoryzacji to pojazdy elektryczne (EV) i hybrydowe (HEV). Ich liczba na drogach rośnie w zastraszającym tempie. Dlatego tak ważne jest, aby już teraz przygotować warsztat na ich obsługę. Oznacza to nie tylko inwestycję w specjalistyczne narzędzia (np. izolowane do pracy z wysokim napięciem, testery izolacji), ale przede wszystkim w szkolenia dla mechaników. Bez odpowiedniej wiedzy i certyfikatów, obsługa aut EV/HEV jest nie tylko niemożliwa, ale i niebezpieczna. To obszar, który będzie generował coraz większe zyski.
Ekologia, która się opłaca: Rozwiązania prośrodowiskowe jako przewaga konkurencyjna
Kwestie ekologiczne stają się coraz ważniejsze dla klientów i dla nas samych. Wdrażanie rozwiązań prośrodowiskowych, takich jak instalacje fotowoltaiczne na dachu warsztatu, systemy recyklingu płynów eksploatacyjnych czy ogólna dbałość o energooszczędność, to nie tylko kwestia odpowiedzialności społecznej. To również element budujący pozytywny wizerunek i przewagę konkurencyjną. Klienci coraz chętniej wybierają firmy, które dbają o środowisko, a niższe rachunki za energię to realna oszczędność dla warsztatu.
Bezpieczeństwo to nie opcja, to obowiązek: BHP i ochrona środowiska w warsztacie
Na koniec, ale bynajmniej nie na ostatnim miejscu, muszę poruszyć kwestie bezpieczeństwa i higieny pracy (BHP) oraz ochrony środowiska. To obszary, w których nie ma miejsca na ustępstwa. Jako Ryszard Kowalczyk zawsze podkreślam, że dbałość o te aspekty to nie tylko wymóg prawny, ale przede wszystkim moralny obowiązek każdego przedsiębiorcy.
BHP w praktyce: Najważniejsze zasady i obowiązkowe środki ochrony indywidualnej
Pracodawca ma szereg obowiązków w zakresie BHP, które muszą być bezwzględnie przestrzegane. Należą do nich przede wszystkim:
- Zapewnienie bezpiecznych warunków pracy na każdym stanowisku.
- Dostarczenie sprawnych i certyfikowanych narzędzi.
- Zapewnienie odzieży roboczej oraz środków ochrony indywidualnej (ŚOI), takich jak rękawice ochronne, okulary ochronne, obuwie ochronne z podnoskami czy ochronniki słuchu.
Dodatkowo, na terenie warsztatu muszą znajdować się instrukcje BHP przy stanowiskach pracy, jasno opisujące zasady bezpiecznego wykonywania poszczególnych czynności. Niezbędne jest również odpowiednie oznakowanie znaki ostrzegawcze, informacyjne i zakazu, które w jasny sposób komunikują potencjalne zagrożenia i wymagane zachowania.
Odpady pod kontrolą: Jak legalnie i bezpiecznie zarządzać utylizacją olejów, opon i filtrów?
Warsztat samochodowygeneruje wiele specyficznych odpadów, które wymagają szczególnego traktowania. Mowa tu o zużytych olejach silnikowych i przekładniowych, starych oponach, zużytych akumulatorach, filtrach oleju i paliwa, a także innych materiałach eksploatacyjnych. Każdy warsztat ma obowiązek odpowiedniej gospodarki odpadami ich segregacji, magazynowania w specjalnie do tego przeznaczonych pojemnikach i przekazywania uprawnionym firmom recyklingowym lub utylizacyjnym. Nieprzestrzeganie tych przepisów grozi wysokimi karami finansowymi i negatywnymi konsekwencjami dla środowiska.
Przeczytaj również: Wymiana szczęk hamulcowych: ile kosztuje i jak nie przepłacić?
Odpowiedzialność wobec otoczenia: Pozwolenia środowiskowe, o których musisz wiedzieć
W zależności od zakresu prowadzonej działalności, warsztat może być zobowiązany do uzyskania różnych pozwoleń środowiskowych. Przykładowo, jeśli odprowadzamy ścieki przemysłowe do kanalizacji, niezbędne może być pozwolenie wodno-prawne. W przypadku wykonywania czynności takich jak spawanie czy lakierowanie, które wiążą się z emisją gazów i pyłów do powietrza, konieczne może okazać się pozwolenie na emisję. Zawsze warto dokładnie sprawdzić lokalne przepisy i skonsultować się z odpowiednimi organami, aby uniknąć problemów prawnych i działać w pełnej zgodzie z obowiązującymi normami środowiskowymi.
